Maidenhead Rowing Club has grown from 70 members on the Berkshire side of the river to the club that we now know 17 years later with 300 members.


With this growth has come increased pressure on our facilities, in particular land training facilities. This has been highlighted over the last few winters when we have been unable to boat for long periods of time because of river conditions. The '13/'14 winter saw us off the water from October to March with record floods. We have been extremely fortunate over the years to have had access to Claires Court School's Gym and Sports Hall, however, this is set to change as the school move from their Ray Mill Road site to the Ridgeway over the next few years.

As you know, in order to compete at any level in rowing a high standard of fitness is required. Land training has become as important as water training. Maidenhead Rowing Club wants to ensure that it provides the best possible opportunities for its members to succeed in their chosen sport and so we have taken steps to move our facilities forward not just to bring us in line with our neighbouring clubs but also to provide training areas that will serve us well for many years to come.


Externalviewsofextension

 


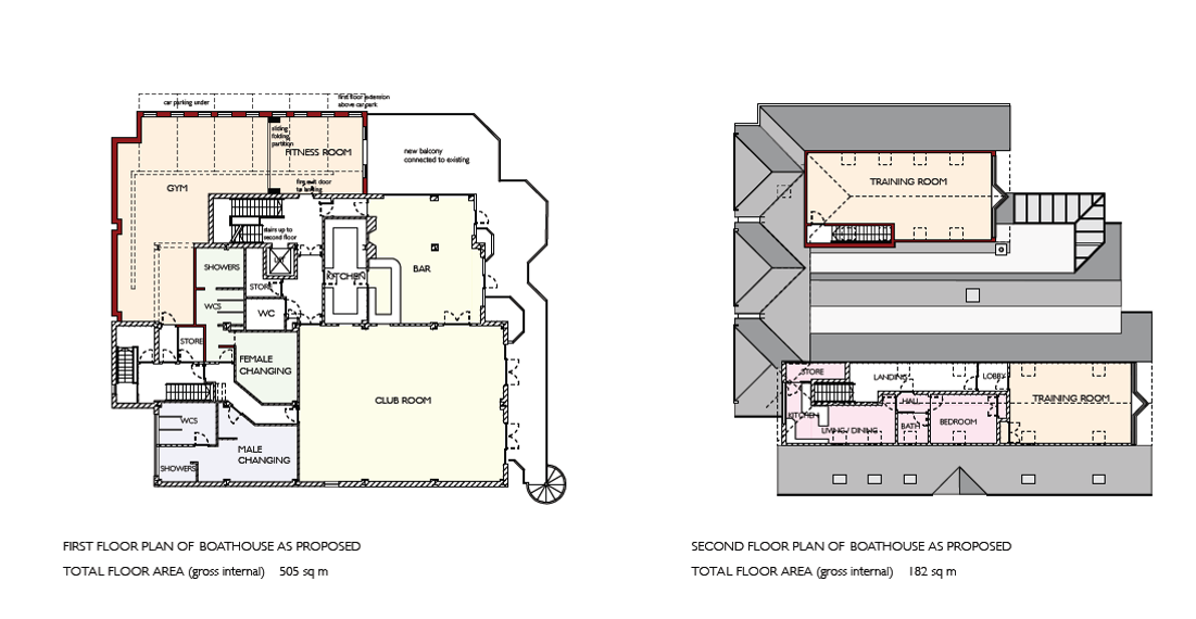
For the last year we have been looking at different options for providing the club with a purpose built gym. We plan to build onto the side of the club on stilts so that we don't lose any parking spaces. This first floor extension will provide 117 square metres of gym space providing us with a weight training area, body circuit space, static bike area and another training room above for 20 ergos. This should allow all squads to be training at the club together bringing back the traditional camaraderie the club has always enjoyed.

InternalPlansofGym
To date we have received a positive Pre-Application letter from South Bucks CC Planning department encouraging us to continue and to submit a Planning Application. We are fortunate to have an Architect amongst our members who has experience of designing boathouses, most notably the new Cambridge University Boat House. Jerry Bailey is now completing the Design and Access stage of our plans working with Savills who are helping us through the planning stages. We aim to submit our application by 22nd December 2014, there is then a 13 week statutory period where the plans pass through the planning processes hopefully giving us a positive outcome by the end of March 2015.


WE'LL NEED TO START FUNDRAISING SOON AND I HOPE YOU WILL ALL SUPPORT US IN THIS EXCITING NEW PROJECT.

 

BritishRowing150x150    Row safe         Explore rowing           Sport England - Lottery funded       World Rowing  AntiDoping